
Studio Photo & Vidéo
130 m² de plateau brut au cœur de Paris 1er. Cyclorama intégré, grille technique, 36 kVA.
Un plateau brut et architectural au cœur de Paris 1er. Résine époxy, cyclorama intégré, grille technique, 36 kVA. Aucun compromis.
Le studio en images



Un studio unique à Paris 1er
Installé au rez-de-chaussée du 39 rue des Bourdonnais, à moins de cinq minutes à pied de Châtelet — Les Halles, le studio Chez Les Plombiers offre un plateau de tournage et de prise de vue de 130 m² en plein cœur de Paris 1er.
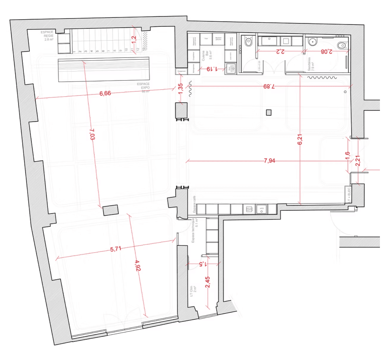
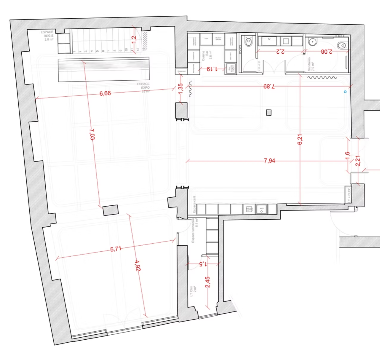
Le mur cyclorama de 4,63 m × 3,40 m, le sol en résine époxy blanche et la hauteur sous plafond de 4,11 m en font un espace polyvalent pour les shootings mode, les campagnes publicitaires, les tournages vidéo et les contenus digitaux. La grille technique au plafond permet l'accroche directe de pieds colonne, pinces crapauds, magic arms et bras articulés — sans installation au sol.
L'accès plain-pied avec double porte de 2,21 m × 2,71 m facilite le chargement de matériel lourd et permet de rentrer un véhicule directement sur le plateau — idéal pour les shootings automobile. L'alimentation triphasée de 36 kVA supporte les configurations d'éclairage les plus exigeantes. Cuisine équipée, espace vestiaire avec portants, postes maquillage et régie complètent le dispositif.

Caractéristiques techniques
Plateau & dimensions
- Surface totale
- ~130 m²
- Mur cyclorama
- 4,63 m × 3,40 m
- Hauteur sous plafond
- 4,11 m
- Longueur plateau
- 8,98 m
- Sol
- Résine époxy blanche
- Fenêtres
- Double verrière atelier (cour + rue)
- Grille technique
- Pieds colonne, pinces crapauds, magic arms, bras articulés
Accès & logistique
- Niveau
- RDC, plain-pied
- Entrée principale
- Double battant 2,21 × 2,71 m
- Entrée secondaire
- Sur rue
- Adresse
- 39 rue des Bourdonnais, Paris 1er
- Métro
- Châtelet / Les Halles (< 5 min)
- Accès véhicule
- Entrée voiture possible (double porte 2,21 × 2,71 m)
Électricité & réseau
- Puissance
- 36 kVA
- Triphasé
- Disponible
- Wifi
- Haut débit
- Filaire
- Prise RJ45
Espaces annexes
- Cuisine
- Équipée complète
- Vestiaire
- Portants & stylisme
- Maquillage
- 1 poste minimum
- Régie
- Espace dédié
Prestations incluses
Tout est prévu pour que vos équipes se concentrent sur la création.
Pour quels usages
Questions fréquentes
Oui. L'accès plain-pied et la double porte de 2,21 m × 2,71 m permettent de faire entrer un véhicule directement sur le plateau. Idéal pour les shootings et tournages automobile.
Plan technique
Consultez les dimensions précises et les vues cotées du plateau pour préparer votre installation.
Télécharger le plan
Tarifs
Contactez-nous pour un devis personnalisé adapté à la durée et au type de production.
Demander un devisRéserver le studio
Envoyez-nous votre demande par email ou WhatsApp. Réponse sous 24h.
Ils nous font confiance